VERTICAL CONVEYOR

VERTICAL CONVEYOR เป็นเครื่องลำเลียงวัสดุในแนวดิ่ง วัสดุที่ต้องการลำเลียงจะถูกป้อนเข้าทางด้านบนหรือทางด้านล่าง หากป้อนวัสดุเข้าทางด้านล่างวัสดุจะถูกลำเลียงขึ้นและออกด้านบน และในทางกลับกัน หากป้อนวัสดุเข้าทางด้านบนวัสดุจะถูกลำเลียงออกทางด้านล่าง ในกรณีที่ต้องการลำเลียงวัสดุจากทางด้านล่างขึ้นด้านบนแล้วลำเลียงกลับด้านล่าง เช่น ลำเลียงข้ามทางเดิน หรือถนนก็สามารถทำได้โดยใช้ VERTICAL CONVEYOR 2 ตัวต่อกัน

TOP CHAIN CONVEYOR แบบโค้งใช้โซ่แถวเดียวจะเหมาะสำหรับการลำเลียงวัสดุที่มีฐานเรียบ เหมือนแบบตรง แต่จะสามารถลำเลียงวัสดุเลี้ยวโค้งได้ โดยไม่ต้องใช้เครื่องลำเลียง 2 ตัว มาต่อตั้งฉากกัน ซึ่งอาจทำให้เกิดการสะดุดบริเวณจุดต่อของเครื่องลำเลียง 2 ตัวที่มาต่อกัน และต้องยังใช้มอเตอร์เกียร์ในการขับเคลื่อนโซ่ 2 ตัว

ตัวอย่างการใช้งาน VERTICAL CONVEYOR 2 ตัว
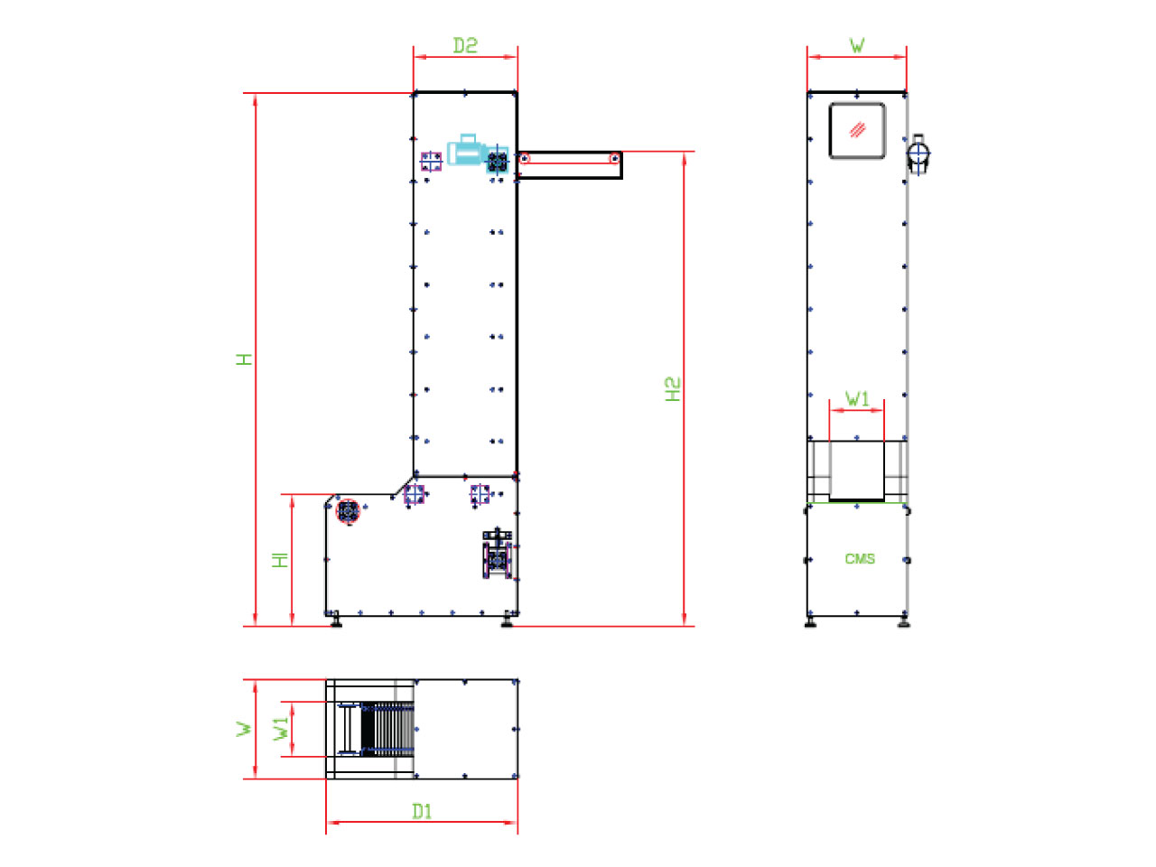
โครงสร้างของเครื่อง
ข้อมูลทางเทคนิค

Over Seventeen-year-experience, the company has designed, produced and installed conveyor systems, packing line solution, engineering design, machine parts and service. So we can support the target of customs variety demand and quickly.

  • 38, Moo. 15, Klong Sam, Klong Luang, Pathumthani, 12120
  • 0-2118-3991-2
  • 0-2118-0816
  • 094-8245915, 093-3566395
  • bancha@chaimachine.co.th

Copyright © All Rights Reserved